はじめに「建築の勉強のために探したユニークなホテル」

浜町ホテル東京に宿泊してきました。東京で面白いホテルは無いかと探していた際に見つけたのがこの浜町ホテル東京です。
見た目の外観もそうですが、建物の構成もユニークなものとなっています。
ホテルとマンションが同一フロアにある複合施設

裏側(マンション側)の外観
この建物の建築主は安田不動産で、設計は松田平田設計です。その他内装にUDSと乃村工藝社が入っています。
建物の建築基準法上の主要用途を見てみますと、「ホテル・共同住宅・飲食店・駐車場」となっています。これが今回面白いなと思って宿泊してみたきっかけです。
ホテルとマンションが同一建物にあります。ただそういった複合建物はたまにあるのですが、今回は同一フロアにホテルとマンションがあります。
そのため通常時はセキュリティがかかり行き来はできないものの、避難時はお互いの専有部分を通ることになるのです。
建築の設計をやっている自分からすれば面白くワクワクするような構成になっていました。一般の人からするとこのような構成はどのように映るのでしょうか。少し気になります。
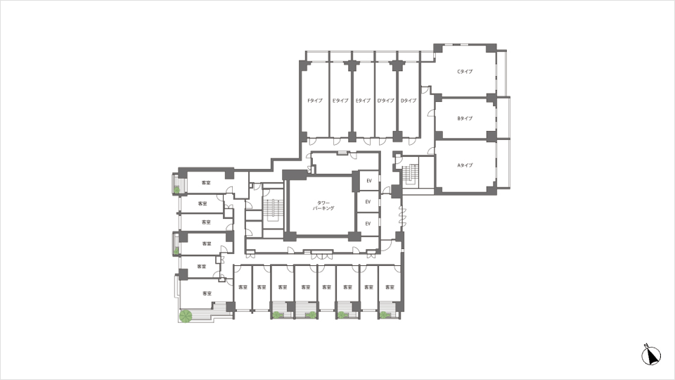
建物の構成が気になる方は以下の図面を見ながら読んでみて下さい。
- 1階平面図【出典】https://www.tokyu-housing-lease.co.jp/mansion/hamacho_apartments/rooms_type.html
- 2階平面図【出典】https://www.tokyu-housing-lease.co.jp/mansion/hamacho_apartments/rooms_type.html
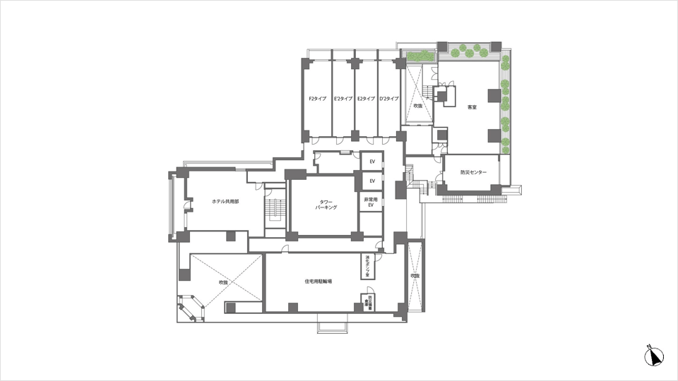
- 基準階平面図【出典】https://www.tokyu-housing-lease.co.jp/mansion/hamacho_apartments/rooms_type.html
人目を引く外観と多種多様な植栽計画

こちらの建物は、清洲橋通りという大通り沿いの角地にあります。
地上15階建てでデザインは縦にも横にも分割され、かつ大まかなランダムさもあるユニークな形になっています。
人目を引く通り沿いはバルコニーに植栽が植えられており、地上部にもふんだんに植えられているので建物全体が緑で植え尽くされているような印象を受けます。
- 地上部の植栽①
- 地上部の植栽②
それだけ魅力的に映る表向きの姿とは変わって、メンテナンスは結構大変そうですが、地域に向けた建物の個性を出すということを積極的に進める建築主の安田不動産にはかなり好印象を持てました。
単体での建物のデザインもニュータイプなもの、建築家的なもので個人的に好きです。
スタイリッシュなエントランス空間

ホテルの出入り口は、主張が強くなく、けれども重厚感があり品のある作りでした。
エントランスの庇上部の「HAMACHO HOTEL」のサイン照明がかっこよかったです。
エントランス・風除室の2枚の自動ドアは鉄扉になっていて期待感を膨らます構成でした。そのドアが開いた時の光景はデザインが上手く整理されていて上品でした。
自然も感じられる開放的で居心地のいいレストラン

エントランスロビーの横には、レストランが併設されています。
ロビーと同一空間の延長線としてレストランがあり、大人数のソファ席から窓際のカウンター席、キッチン対面のカウンター席、階段で数段下がったところにあるテーブル席など面積はそこまで広く無いもののゆったりと寛げる空間でした。

レストランの様子
天井が高く、窓の外には森のように生い茂る木々が見え、非常に居心地が良かったのでかなり長い時間このレストランにいました。
チェックインしてからカフェタイムを過ごし、そのままディナーに移り、翌朝もこのレストランでモーニングを食べました。それだけ気に入ってしまいました。

ちなみに、こちらのレストランは道路の角に面したところにも出入口があり、象徴的で高級感があります。調べてみるとその角の出入口は設計当初はなかったそうなのです。
しかし現場に入ってから、やはりそこに出入口を作るべきだという乃村工藝社のデザイナーの判断により急遽変更になったらしいです。
結果それは大成功だったと見て思いました。しかし変更対応する設計者や施工者の苦労も労わずにはいられないなと思ってしまいました…
客室に向かうまでの共用部

1階でチェックインをし、客室へ向かいます。エレベータに向かう廊下はホテルの宿泊者だけではなく、マンションの住人も使います。
マンション側はエレベータホールの手前にカードリーダーがあり、そこでセキュリティが分かれています。

マンションのエントランス
夜はひと気の無いマンションのエントランス周りも、24時間稼働するホテルと併設していることで、セキュリティはより強化されているように感じました。防災センターも2階に設けられています。

エレベータホールの内装は木調の設えです。エレベータの中の階数表示もシンプルながらも個性的でした。

客室フロアに着くと、そちらは内廊下の一般的なホテルの内装でした。ですが壁面の扉はフラットバー枠で作られていたり、こだわりのあるカーペットが見られました。
設計者としてはこういった廊下の細かいところがどうなっているか、コストを優先してデザインがおざなりになっていないかといった点が気になって見てしまいます。
コンパクトで使いやすい客室

今回宿泊したのは、オーソドックスなタイプの部屋です。朝食付きで1泊12,000円程度でした。他にもファミリータイプやテラスタイプなどの部屋があります。

室内は15平米でとてもコンパクトでした。玄関を入ってユニットバスがあり、奥にベッドルームというのは一般的なビジネスホテルと同じ作りでした。

しかしベッドが壁際ではなく、両脇を開けるように中央にあるというのが特徴的で、使いやすい工夫が施されていました。
大人数で貸切できる「東京クラフトルーム」を特別に見学

1階を見学していた時に気になったのが、階段で上がった先にある「東京クラフトルーム」です。
気になったのでホテルのスタッフさんに聞いてみると、案内していただけるということで見学させてもらいました。
とても親切なスタッフさんだったので、色々と質問させてもらいながら部屋全体を見学できました。
ここは宿泊もできレンタルスペースとしての利用もできる部屋ということでした。
キッチンや洗面、浴室のデザインも個性があり、家具一つ一つも個性的でした。これらは日本や海外のデザイナーとコラボレーションして作っているそうです。
- 洗面
- キッチン
- ベッド
- カーペット、ソファ、テーブル、棚
おわりに「行きつけにしたい穴場のレストラン」

ディナータイムのレストラン
クラフトルームを見学させてもらった際のスタッフさんがとても親切で、建物の設計的な話も色々聞いてしまいました。
「建築の人はたくさん来るけれどもそんな質問は初めて」と言われたくらい、変な質問もしてしまいましたが、それでも丁寧に答えてくれました。
建築の勉強にもなり、居心地の良さに心身共にリフレッシュができたホテル滞在でした。
レストランだけの利用でもお勧めしたいので気になったら是非行ってみてください。浜町は結構穴場だと思いました。














※今回はこちらのホテルに宿泊してきましたので、宿泊者としてだけでなく、建築士として建物の中身にも踏み込んで記事を書いていきたいと思います。